帐号:
密码:
 
 
循环水冷却塔
全自动过滤器
纯水处理设备(1)
纯水处理设备(2)
污水处理设备
全自动净水设备
PTA母液过滤器
高效脉冲覆膜除尘器
XD-QGL-F系列履带式过滤器
自清式过滤器
化工、化纤工艺过滤器
全自动纸带过滤机
XD-C、XD-S型篮式过滤器
Y型过滤器、视镜
PTA管道链板输送设备
各种非标容器设备
各种液体、粉体、熔体滤芯
空气冷却器
各种填料
各种风机
玻璃钢制品及其它
 
 
电话:0510-87871828
传真:0510-87805828
地址:宜兴市和桥经济开发区
邮编:214211
网址:www.yx-xd.com
邮箱:JSXD828@vip.163.com
 
自清式过滤器
已阅:4946  2008-9-29 13:33:36

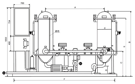
(一)XD-F型滤芯式过滤器

    本公司推出了的滤芯式自动过滤系统,它适用于过滤精度高、杂质含量适中的应用场合,流程如下图。液体由滤芯外部进入,杂质被拦截在滤芯外部,待杂质累积达到一定程度,压差上升到系统设定值,则进出流体阀关闭,压缩气体进入,将杂质排出,滤网得以再生。

(二)ZQ-B型自刮除式过滤系统
    自刮除式再生型过滤系统由子可以连续过滤无须切换而可再生,广泛应用子对空间限制较大,杂质含量高,流量大的备用场合。

(三)ZQ-D液力自洁型滤系统
    为了适应低粘度,高精度过滤要求,本公司推出了液力自洁型过滤系统,如同自清洗系统一样,滤芯在清洗过程中,系统可以正常过滤。

   

   

 

 
 
Copying(C)2007 无锡市兴盛环保设备有限公司 All Rights Reserved. 网站管理
电话:0510-87871828 传真:0510-87805828 地址:宜兴市和桥经济开发区 邮编:214211

苏公网安备 32028202000354号

 
苏ICP备07008948号-1